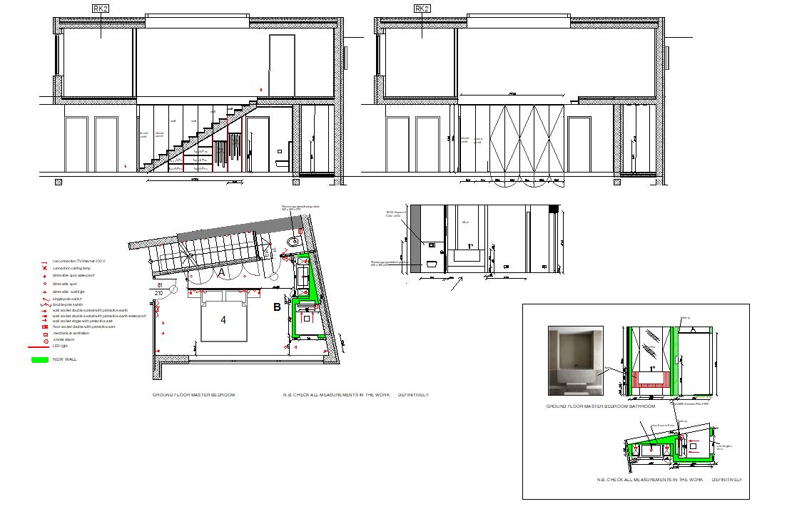
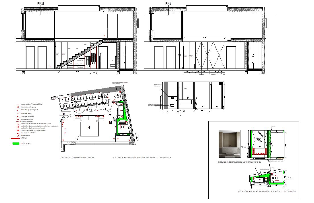
Interieur uitwerken Villa Dubrovnik 2024. In Dubrovnik wordt volgend jaar een prachtige villa gebouwd. LINDESIGN helpt met het interieur uitwerken van de vakantie villa in Dubrovnic tot in de detail. We werken samen met een architect uit Dubrovnik die de villa heeft ontworpen. LINDESIGN is gevraagd om dit interieur te tekenen in autocad tot in de detail. Dat de meubelmaker en de aannemer in Dubrovnik zo aan de slag kunnen, Het project staat nu on-holt maar gaat in januari volgend jaar weer verder. En dan wordt het direct gebouwd. We zijn al aardig uit het ontwerp, omdat de eigenaresse precies weet wat ze wil. En ik visualiseer dit in 3D tekeningen en autocad tekeningen voor haar. En de samenwerking gaat prima. Zodra er weer wat meer bekent is in 2024 wordt dit bijgewerkt op de website. De volgende stap is de materialisering definitief maken. Dan kan alles definitief getekend worden en gebouwd. En hoop het eindresultaat op de website te plaatsen. Dubrovnik wordt als een van de mooiste steden van de Adriatische kust beschouwd en wordt daarom ook wel de ‘Parel van de Adriatische Zee’ genoemd. De oude, compleet ommuurde vestingstad van Dubrovnik staat op de Werelderfgoedlijst van de UNESCO.





























